When it comes to evil, how do you choose?

The sign in the mud reads: Please call the Department of Natural Resources for questions at 1-800-361-4827
PLEASE BE NICE when you make the phone call.

Silt laden water on the way to August A. Busch Memorial Conservation Area
Eastern Missouri.
The City of O'Fallon (Mud City) authorized the clear cutting of almost 300 acres of old growth oak and hickory trees, to the dismay of the resident fox squirrels, bats and honey bees.
At the zoning meetings, we stressed that the sloped land proposed to be denuded, drained through our horse pastures. How were they going to stop the water from flooding us? The silt and mud?
Big yawn at our concerns.

What we were asking to protect.......

And what we were given....
Muddy out flow pipes.
Per USDA TR-55, not one more drop of water can leave the property than before "Improvements"
The Army Corps of Engineers is obligated to monitor all phases of the fish kills.
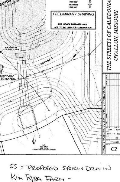
The Plan.....

The plan presented at the O'Fallon City Council meeting.
Boldly directing the lake outflow, storm drains and spillway to "Kim Ryba's Farm"
The law is being followed they insist.
Storm water scam?
Scalp 300 acres.
Bury a spider web of hidden six foot tall drainage pipes to all empty into a basin.
At the bottom of the basin, bury two 3 foot tall pipes to empty the collected water into our Spring Branch creek.
The scam promoted by both the developer and the City of O'Fallon, and approved by DNR, is that as long as one drop of water empties through the two, three foot pipes, then all is well.
The law is being followed they will insist.
The poisons are of no concern.

Silt and turbid water on the way to the Spring Branch and Busch Wildlife Area


Partial aerial view of the Spring Branch BEFORE it was buried in 6' tall pipes. Note this is a sloping hill and we are down hill. (Lower left)
The Army Corps of Engineers, the MoDNR and the City of O'Fallon bless this disaster.
The problems?
For a moment, ignore our horse farm, (the powerful groups do, because that is what dictators do) ignore our property; look closely, adjoining us, our neighbor is Busch Wildlife Area and Dardenne Creek.
Busch Wildlife Area is one of the few wildlife areas in the St. Louis/St. Charles area.
The last green zone if you may.
Dardenne Creek, the focus of the Dardenne Greenway project meanders through large area of St. Charles County.

The Greenway project, now known as the "Mudway"
Which is the worst ecological disaster?
Flooding
Silt and turbidity
Pesticides and powerful fertilizers
The aviation fuel lingering in the gravels of O'Day Creek.
When it comes to evil, how do you choose?
Where storm water once had the chance to travel through woodlands, absorb into the aquifer, it is now jetted like a giant flush toilet onto the O'Day Creek & the wildlife area.
**Flooding: The City of O'Fallon insists. "Creeks Flood" & ANY erosion is natural.
The Dardenne Greenway? Renamed the Dardenne Mud-way.
**Silt and turbid waters: The death blow of many waterways and wildlife is given the green light to kill. Ignore the Clean Water Act, as the Corps of Engineers looks the other way.

The lake of poison before it is released to the wildlife area and Mississippi River
**Round-up poison and powerful fertilizers.
Fertilizers and the 'other' death blow to streams, ponds and lakes around the world. The source of oxygen depriving algae blooms and fish kills.
Wildlife Area and fish kills. Not an issue for the DNR, Conservaton Department and the Corps of Engineers.
Will check with the EPA, but know the answer already.

This is a photo of an algae bloom from "The City of O'Fallon's zoning meeting" - Fort Zumwalt park. The City fathers were quite aware of the deadly algae blooms, but cared little how their projects would affect Busch Wildlife.
Corruption pays!
Putting the Green in the Dardenne Greenway
O'Day Park

Color study of O'Day Park soil types.
ODD?
Why the odd shape of O'Day Park?
The pipeline leak hidden history and pollution of course.
The bottom right number of 66014 was never remediated and to this day, petroleum product rises to the surface of the gravel.
**And the leaked pipeline fuel that is still in the O'Day Creek?
The increased flooding encouraged by the City of O'Fallon with their new O'Day Park and approval of 600 new homes on the east bank, will stir up the long dormant 'black death' bringing a new round of fish kills in Busch Wildlife Area.
Missouri DNR, chose to let the black death remain in the O'Day creek, rather than make the oil company clean up their mess. The City of O'Fallon took ownership of the land and leaked fuel.
Recent photo of the surface contamination put on my "O'Fallon wins lawsuit page"
Sad what lies in store for the wildlife of Dardenne Creek.
And the talkers? The Department of Conservation, I mean 'Conversation' --they will talk about selling a fishing license, to fish to a dead stream.
Final comment on the Color soil type of the O'Day Park.
The middle right section of park that juts east?
That is the Spring Branch Creek.
All the mud, silt, fertilizer, poison and turbid water rages from the spillway of the retention pond and onto PARK property, before making it's deadly way to the wildlife area.
Does the City of O'Fallon then own the poison and mud?
Ask the Corps of Engineers???
(My apology for that joke)
Still adding photos.............

Return Home from Stormwater failure page

My next book!! "Surviving Kennedy Space Center"
on Amazon on September 16, 2025.
Peek behind the curtains of the Shuttle and Artemis programs.

My newest book, available on Amazon
(paperback and e-book)
For pet lovers around the globe, "It's a Matter of Luck" is a collection of heart warming stories of horse rescues from the slaughterhouse.
Available on Amazon

It's a Matter of Luck: Inspirational, Heartfelt Stories of Horses Given a Second Chance.
by Kim Ryba & Lina T. Lindgren
Warning: This book may cause your eyes to water in a good way. (speaking from experience after reading it)
Please give Kim and Lina a heartfelt review on Amazon!

Author Bruce Ryba at Kennedy Space Center Launch Pad 39B & Artemis 1. "We are going to the Moon!"
Author's discussion (that's me) on You Tube of a book review on Amazon
For the video versions of information, please check out my YouTube Channel (Turkeys, Flintknapping, dive stories etc.)

My fictional series/stories on Florida history:
Freedoms Quest (book one)
Struggle for the northern frontier and other lost tales of old Florida.
Available on Amazon

Desperate times call for bold action.
In a desperate move to retain Florida and protect the treasure-laden galleons on their dangerous return journey to Europe, the King of Spain issues a royal decree offering refuge to all English slaves who escape Florida and pick up a musket to defend the coquina walls of Saint Augustine.
In another bold gamble, the King offers refuge to the dissatisfied Indian nations of the southeast who will take up arms against the English.
Clans, traumatized by war and disease, cross the Spanish Frontier to settle the cattle-rich land and burned missions of Florida.
Follow the descendants of the conquistador Louis Castillo in remote Spanish Florida, a wild and swept by diseases, hurricanes, and northern invasions.
Book Two: End of Empire Available on Amazon!